Sale Apartment Nice
Sale Apartment Nice
Sale Apartment Nice
Sale Apartment Nice
Sale Apartment Nice

Sale Apartment
Nice Saint Antoine de Ginestière

Ref. 85642742

3 rooms

2 bedrooms

67.2 m²

€350,000

Additional information

Sale Apartment Nice Saint Antoine de Ginestière

€350,000

Other visuals

No information available

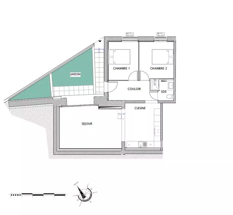
Areas

  • 1 Living room/dining area 22 m²
  • 1 Bedroom 11 m²
  • 1 Bedroom 10 m²
  • 1 Garden 22 m²
  • 1 Kitchen 14 m²
  • 1 Shower room 4 m²
  • 1 Indoor parking 11 m²

Proximities

  • Airport 9 minutes
  • Bus 5 metres
  • Town centre 9 minutes
  • Shops 10 metres
  • Sea 5 minutes
  • Beach 5 minutes

Services

  • Air-conditioning
  • Home automation
  • Double glazing
  • PVC window
  • Irrigation sprinkler

Legal notice

  • Agency fees payable by vendor
  • « Carrez » act 67.2 m²
  • Land value tax 1226 € / year

Request additional information

Energy efficiency

Diagnostic Graph
Diagnostic Graph

This site is protected by reCAPTCHA and the Google Privacy Policy and Terms of Service apply.